Nabízím k prodeji vícegenerační rodinný dům v Nehvizdech s celkovou plochou 129 m² na pozemku o rozloze 480 m². Dům je rozdělen na dvě samostatné bytové jednotky, které lze propojit.
Dispozice:
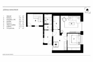
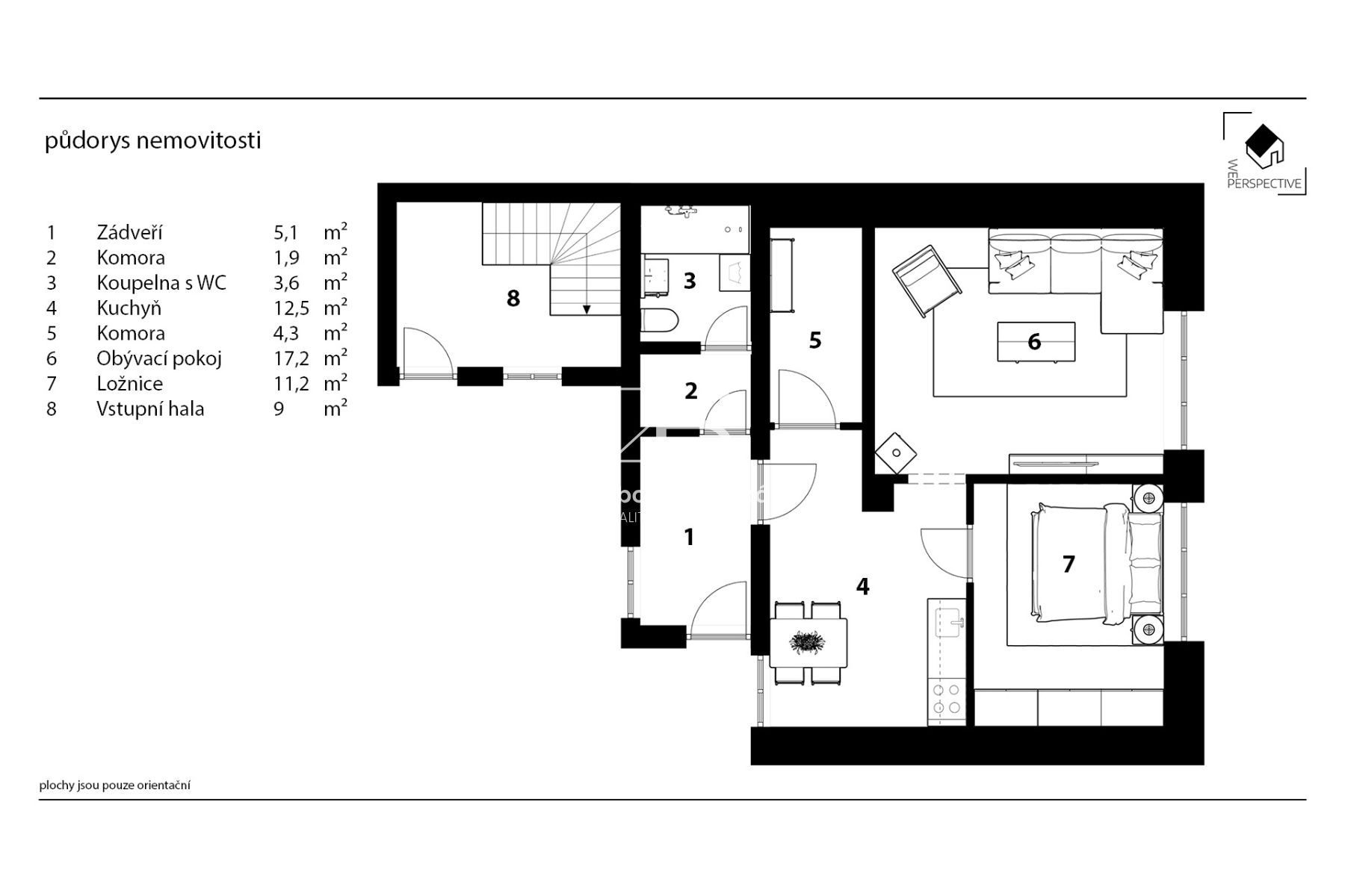
Přízemí: 58 m², rekonstrukce proběhla v roce 1998
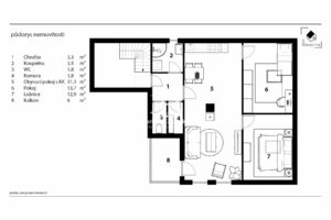
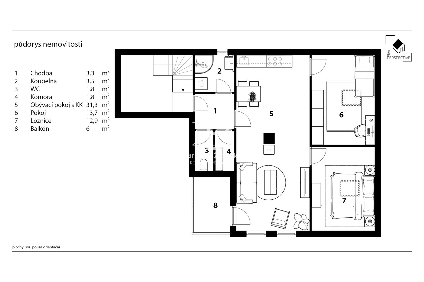
Patro: 65 m² + 6 m² balkón, rekonstrukce proběhla v roce 2000
Na zahradě se nachází zděná kůlna/dílna a dřevník.
Technické parametry:
-Vytápění: plyn + kamna na tuhá paliva
-Napojení na veřejnou kanalizaci a vodovod
-Kompletní sanace domu v roce 2008
-Revize komínu provedena v roce 2024
Lokalita a občanská vybavenost:
Nehvizdy nabízí základní občanskou vybavenost – mateřskou a základní školu, obchody, restaurace, zdravotní středisko a sportovní areál.
Dopravní dostupnost:
Obec má přímé napojení na dálnici D11, což umožňuje rychlou cestu do Prahy. Autobusové spojení na metro Černý Most trvá přibližně 20 minut.
PENB nedodán, proto je uvedena energetická třída G.
Pro více informací nebo sjednání prohlídky mě neváhejte kontaktovat,






































